当社で推進している「一部屋断熱」について書こうと思います。
こんにちはアスカ工務店 遠藤です。
今日は、今、当社で推進している「一部屋断熱」について書こうと思います。
皆さん、「デコ活」って知ってますか?
全然関係ない話ですが、確かドジャースの大谷選手が飼っている犬の名前が
「デコピン」と呼ばれていたそうな。
それとは全然関係ないですが。
「デコ活」とは国の環境省が、推進している2050年への「カーボンニュートラル」
2030年の削減目標を強力に推し進める為の国民運動を「デコ活」といっている
そうです。
もう少し詳しく言うと「脱酸素につながる豊かな暮らしの道筋」(課題と仕掛け)を
全領域(衣食住、職、移動、買物)で明らかにし官民連携による行動変容、
ライフスタイル変換を促進します。(デコ活意義から抜粋)
このデコ活の活動の中に既存住宅の断熱リフォーム.耐震リフォームの推進が
あるようです。
その中の解説に「一部屋断熱」の推進がありました。
当社は、このデコ活にまだ、参入まではしてませんが、以前より断熱耐震
リフォームはしていたので、たまたま知って、いろいろ参考にしていこうと
思っています。
やはり国の方向性は、カーボンニュートラル、地球温暖化対策なんだな、
と思いました。
ところで、話は実際の一部屋断熱への話ですが、その前に、まずは
お客様とお部屋のプランの打ち合わせがあります。
前回も書きましたが最初お客様のリフォームの目的は、現状のダイニングキッチンと
和室を一部屋のリビングダイニング、キッチンにしたいということでした。
ただ、今のお部屋の過去の不便さもあったので、それをどのように、改修してくかを
決めるためには十分時間をかけての打ち合わせが必要です。
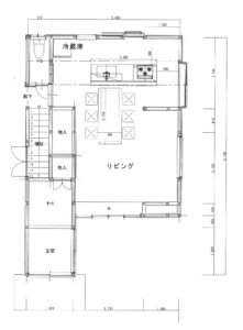
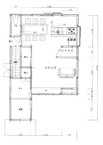
打ち合わせは、希望プランをいくつか出し合って、それを図面化し検討しました。
自分はこの過程は、リフォームするに当たって、いちばん大事な過程だと
思いますので、ご自宅にお邪魔したり、当社の事務所へいらしていただいたりして
打ち合わせを進めました。
そして、一案、一案 プラン化していきました。




キッチンの種類、メーカーによってもプラン内容変えていきました。
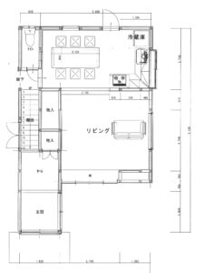
最終的に決まったプランはこちら。

次回は工事の内容、どのように工事していくか書きたいと思います。